Para una mejor experiencia rota el dispositivo

Casa Calavera

  • Ubicación: Naucalpan, Estado de México, México
  • Año: 2017
  • Área construida: 550 m2
  • Arquitectos: Héctor Delmar, Juan Carlos Fuentes, Arturo Zurita, Alexa de Alba
  • Construcción: HDA Hector Delmar Arquitectura
  • Fotografía: Luis Gordoa

Información Bioclimática

  • Clima: Templado sub-húmedo con lluvias en verano de humedad media.
  • Elevacion SNM: 2,232 m
  • Vientos dominantes fríos: N/NE/E
  • Brisas frescas: SO/S
  • Temperatura: mínima +9°C - Temperatura máxima: +19°C
  • Precipitación: 800-1000 mm3

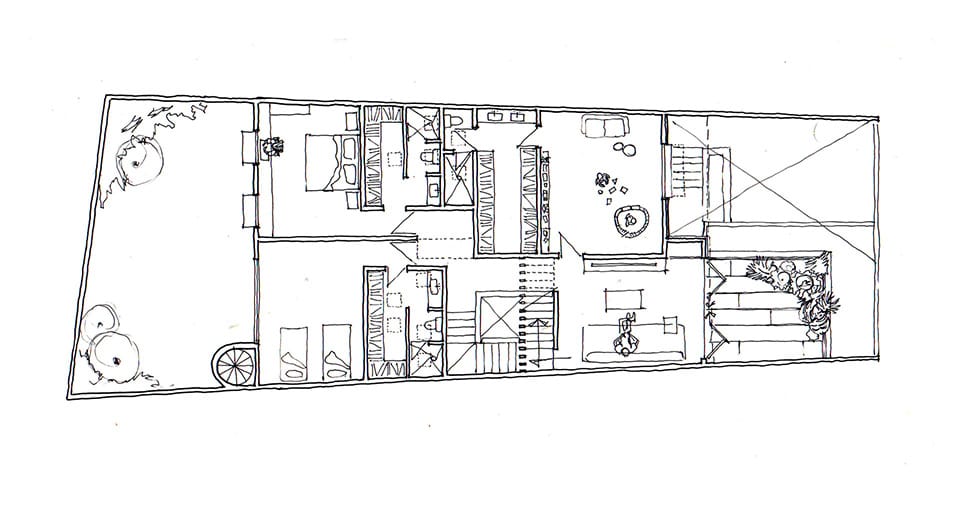
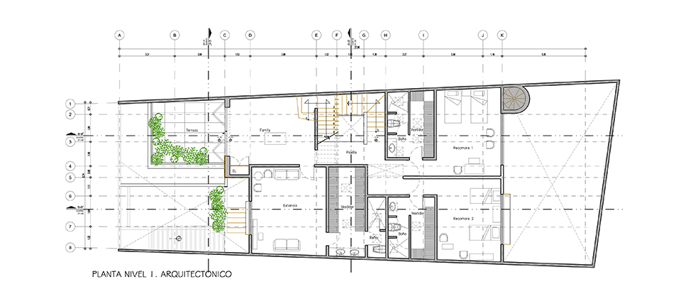
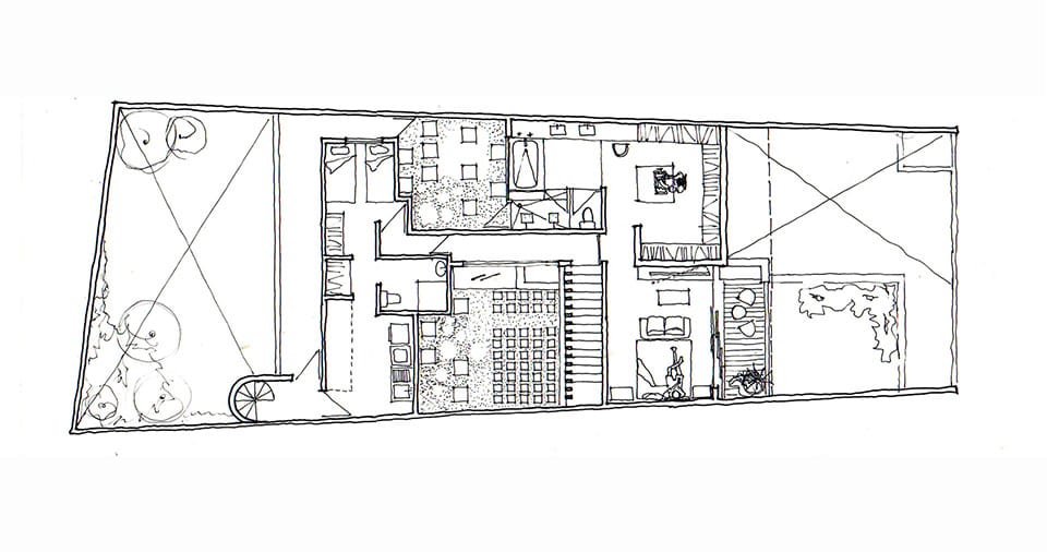
Las colinas adyacentes al poniente del Valle de Mexico solían ser tranquilas colonias y poco densas. Ahora se levantan grandes edificios y los lotes están llenos de casas, pero todavía hay vestigios del paisaje boscoso. El proyecto es la renovación de una casa que se ubica en este contexto, donde hay topografías accidentadas y colindancias construidas. La casa vieja tenía dos niveles y una fachada cerrada hacia la calle, donde está la luz y las vistas a las colinas circundantes. El diseño abre estratégicamente esta fachada hacia el cielo y las colinas para integrar lo que queda del paisaje natural con el interior. Se utilizaron shutters de aluminio por fuera para controlar la incidencia solar, la privacidad y dar seguridad en una zona que puede ser vulnerable a los robos. Se hizo un tercer piso para ampliar el programa arquitectónico ubicando la recamara principal con baño y vestidor. Para esto se hizo una cubierta ligera que flota sobre los muros existentes. La vieja fachada de aplanado y sus añadidos fueron recubiertos con una capa de concreto blanco de 6cms colada en sitio y cimbrada con la lámina corrugada que se usó en la cubierta, dando escala y textura. La memoria de la lámina queda impregnada en las fachadas para que todo forme parte de un conjunto y se disuelva lo existente de lo nuevo. Para llegar a la ampliación del tercer piso, un domo existente se transforma en la escalera que cuelga del techo, haciendo rebotar la luz de distintas formas a lo largo del día en el interior, lo que exalta la experiencia de circular la casa verticalmente. En planta baja se hicieron ampliaciones para alojar un bar, un cuarto de TV y terrazas. El cliente solicitó una pecera, misma que se integró al corazón de la casa como si siempre hubiera estado ahí.