Para una mejor experiencia rota el dispositivo

Casa Parapente

  • Ubicación: Monte Alto, Valle de Bravo, Estado de México, México
  • Año: 2022
  • Área construida: 1,090 m2
  • Arquitectos: Héctor Delmar, Juan Carlos Fuentes, Arturo Zurita, Alejandro Ramos, Alejandro Barrera.
  • Construcción: Ricardo Yslas Gámez Arquitectos
  • Fotografía: Rafael Gamo
  • Iluminación: Light Moxion
  • Paisaje: Idea Verde/HDA Hector Delmar Arquitectura
  • Block de Concreto: Grupo Joben
  • Estructura de madera: MIC MAC

Información Bioclimática

  • Clima: Semicálido sub-húmedo con lluvias en verano de humedad media.
  • Elevacion SNM: 1,783 m
  • Vientos dominantes fríos: N/NE
  • Brisas frescas:O/S/SE
  • Temperatura: mínima +15°C - Temperatura máxima: +27°C
  • Precipitación: 1100 - 1300 mm3

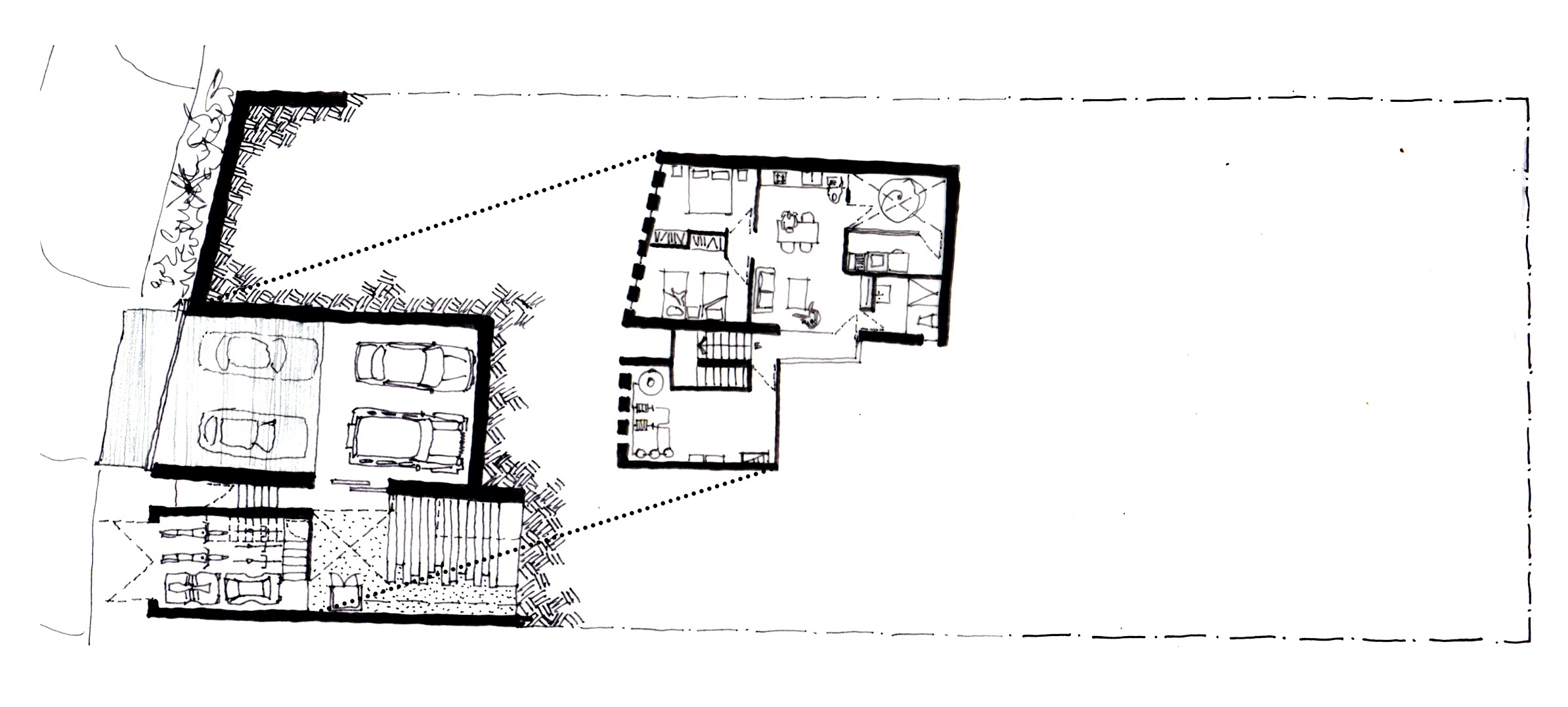
En un sitio ascendente, previamente mutilado y terraceado, ubicado en el cerro de Monte Alto en Valle de Bravo, Estado de México, se desarrolló el proyecto de esta residencia para dos hermanos y sus familias.

Para habitar la pendiente el proyecto se organiza mediante la superposición/yuxtaposición de plataformas que completan la topografía de la colina y recuperan la vegetación autóctona del sotobosque templado de coníferas que cada vez se destruye más en la zona.

Una escalera abierta, pero techada por jardineras, acompaña los volúmenes que alojan las 6 recámaras de la casa, construidas en block estriado y concreto aparente mezclado con la tierra recuperada de las excavaciones, dando como resultado el color cálido de todos los espacios. La textura del block mimetiza las cortezas de los troncos de los ocotales que rodean el sitio, haciendo a la casa parte del bosque.

Mientras se sube, se van descubriendo los accesos a las recámaras hasta vislumbrar la estructura reglada de madera que techa las áreas comunes en la última plataforma. El techo se concibió mediante el análisis geométrico de los parapentes que despegan de la parte más alta del monte y vuelan sobre el sitio. Así la cubierta parece “planear/flotar” sobre la colina, permitiendo la entrada de luz, la ventilación cruzada del espacio y las dramáticas vistas del valle.