Para una mejor experiencia rota el dispositivo

Casa Primavera

  • Ubicación: Zapopan, Jalisco, México
  • Año: 2017
  • Área construida: 550 m2
  • Arquitectos: Héctor Delmar, Juan Carlos Fuentes, Arturo Zurita.
  • Construcción: No construido

Información Bioclimática

  • Clima:Semicálido sub-húmedo con lluvias en verano de humedad media.
  • Elevacion SNM: 1,615 m
  • Vientos dominantes fríos: E/S/SE
  • Temperatura: mínima +13°C - Máxima: +26°C
  • Precipitación: 800 - 1200 mm3

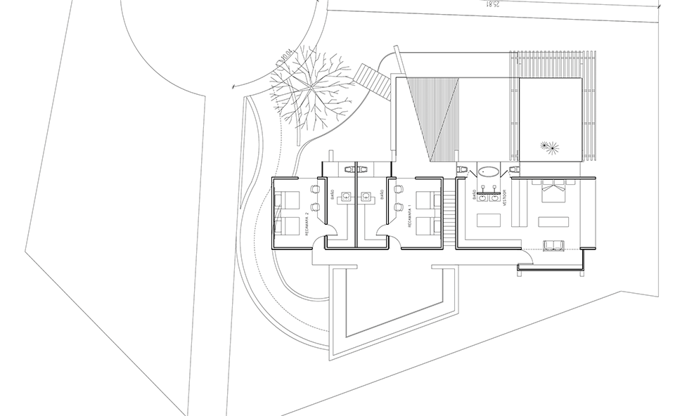
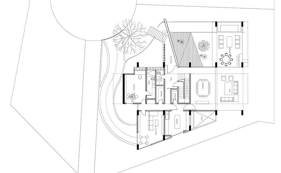
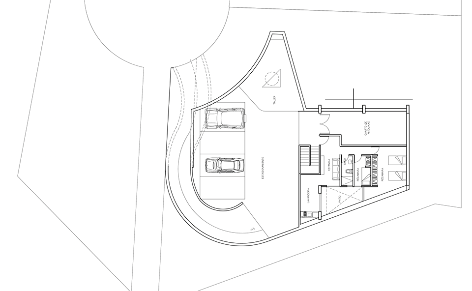
El terreno dentro de un exclusivo campo de Golf en Zapopan, Jalisco es una poligonal irregular rodeada de colindancias. Entre problemas de privacidad con los vecinos y acotamiento de la construcción por el reglamento, a veces ilógico, del fraccionamiento se desarrolló el concepto arquitectónico.

El proyecto es una aproximación regenerativa al sitio. La intención es restaurar el paisaje natural de bosque y pastizal que alguna vez dominó los horizontes de la zona. La casa se entiende como un árbol habitable dentro de este paisaje. La planta baja son marcos de concreto abiertos en todas direcciones para ventilar las áreas públicas e integrarlas al nuevo jardín. La planta alta es un volúmen sólido que da sombra y protege las áreas privadas.