Para una mejor experiencia rota el dispositivo

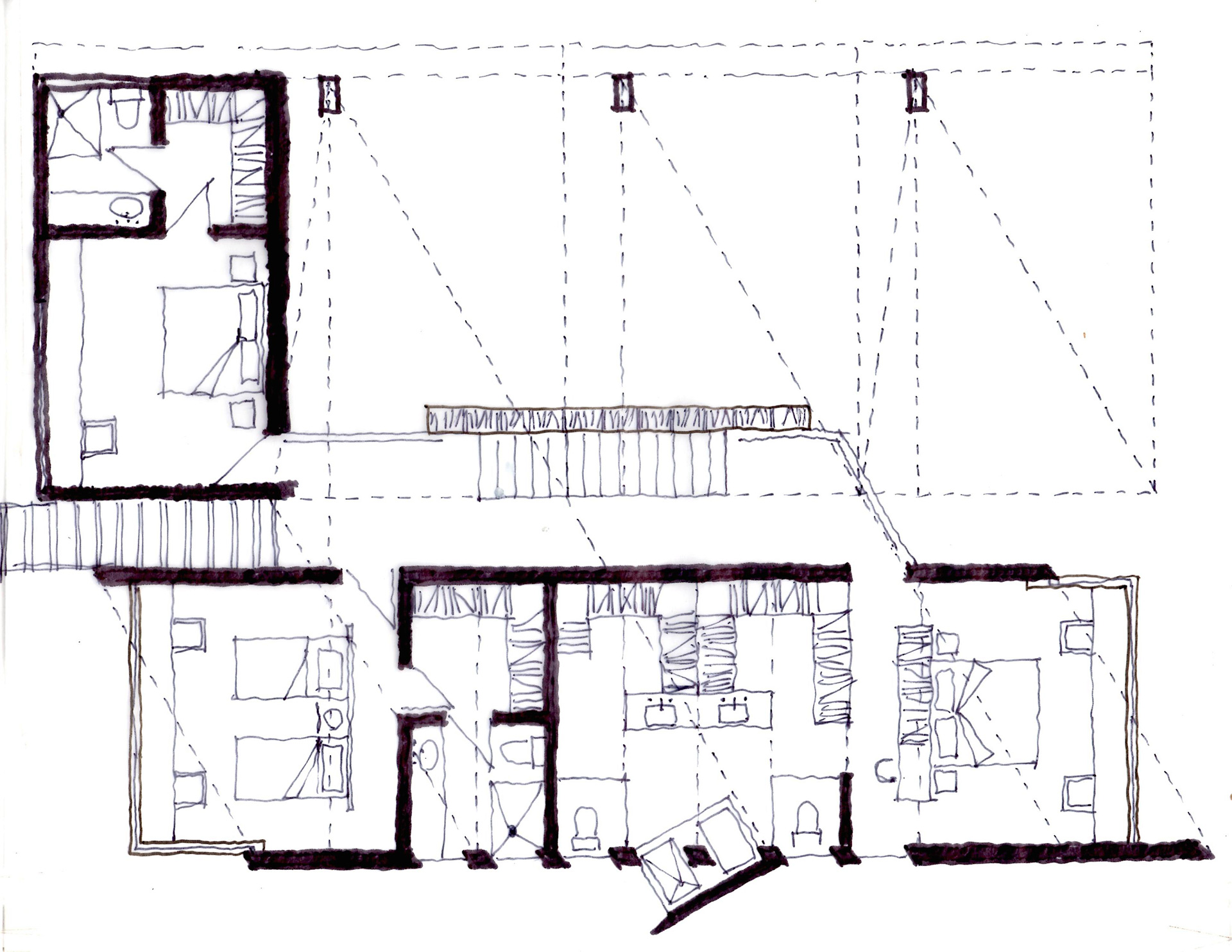
Casa ZAP

  • Ubicación: Zapopan, Jalisco, México
  • Año: 2014
  • Área construida: 400 m2
  • Arquitectos: Héctor Delmar
  • Construcción: No Construido

Información Bioclimática

  • Clima: Semicálido sub-húmedo con lluvias en verano de humedad media.
  • Elevacion SNM: 1,615 m
  • Vientos dominantes fríos: E/S/SE
  • Temperatura: mínima +13°C - Máxima: +26°C
  • Precipitación: 800 - 1200 mm3