Para una mejor experiencia rota el dispositivo

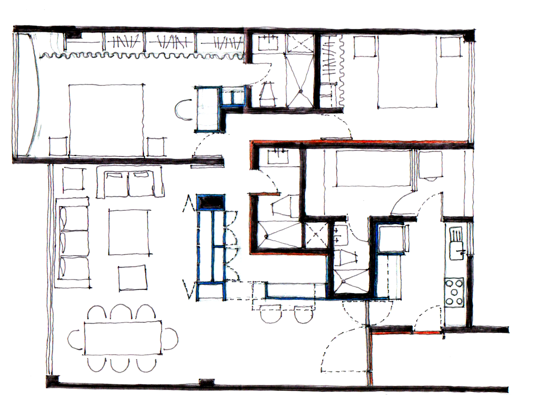
Departamento Blue Box

  • Ubicación: Miguel Hidalgo, Ciudad de México, México.
  • Año: 2018
  • Área construida: 100 m2
  • Arquitectos: Héctor Delmar y Arturo Zurita
  • Construcción: HDA Hector Delmar Arquitectura
  • Fotografía: Jaime Navarro

Información Bioclimática

  • Clima: Templado sub-húmedo con lluvias en verano de humedad media.
  • Elevacion SNM: 2,272m
  • Vientos dominantes fríos: N/NE/E
  • Brisas frescas: E/NE
  • Temperatura: mínima +8°C - Máxima: +23°C
  • Precipitación: 600-900 mm3

El diseño de interiores es a veces cuestión de remover lo que sobra y completar con sencillez. Este departamento es este caso, en el que se quitaron los tiroles y acabados existentes de muros para mostrar las texturas del block.

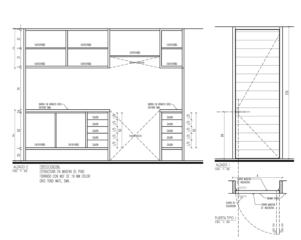
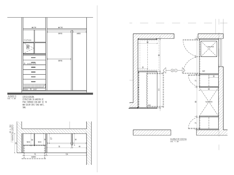
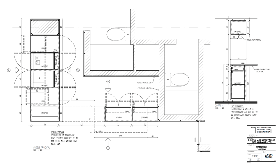
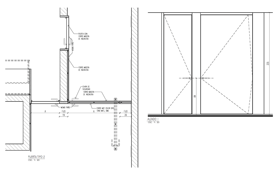
Un mueble azul, presente en todos los espacios del departamento, ubica las áreas de guardado en la cocina, el mueble de TV en la sala, un pantry/bar/desayunador en el acceso y el tocador en la recámara principal. El uso de cortinas para los closets le dá calidez a las recámaras, permitiendo maximizar el área de guardado.