Para una mejor experiencia rota el dispositivo

Zotehuela

  • Ubicación: Juarez, Cuauhtémoc, Ciudad de Méxco, México.
  • Año: 2016
  • Área construida: 45 m2
  • Arquitectos: Héctor Delmar y Arturo Zurita
  • Construcción: HDA Hector Delmar Arquitectura
  • Fotografía: Graham Milligan
  • Iluminación: RML
  • Paisaje: Idea Verde

Información Bioclimática

  • Clima: Templado sub-húmedo con lluvias en verano.
  • Elevacion SNM: 2,234 m
  • Vientos dominantes fríos: N/NO
  • Brisas frescas: E/SE
  • Temperatura: mínima +11°C - Máxima: +25°C
  • Precipitación: 500 - 800 mm3

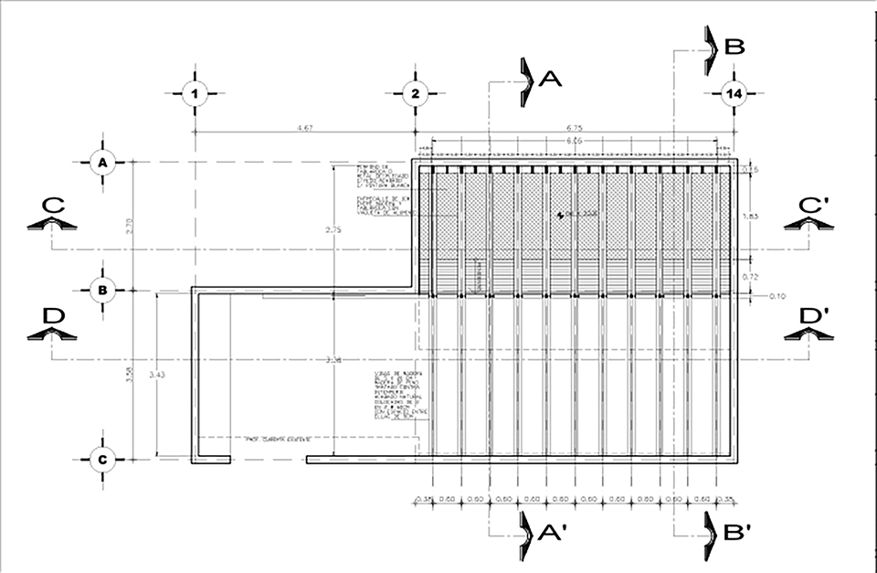
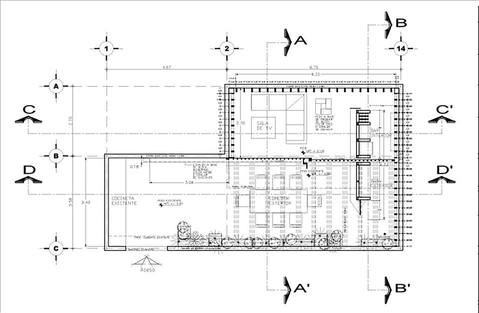
Esta terraza responde a las condiciones de una azotea como si fuese un terreno. El sitio colinda con el estacionamiento de un hotel que bloquea los vientos dominantes restringiendo el confort térmico por ventilación.

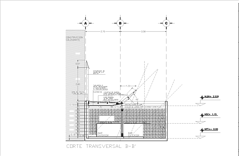
La propuesta es una techumbre ligera sobre los pretiles existentes generando áreas cerradas, abiertas y semi-techadas dando flexibilidad al espacio. La techumbre tiene un volado de lámina con la inclinación calculada para dejar pasar el sol en el invierno al interior, bloquearlo en el verano. En la parte posterior del espacio interior se hicieron domos con aberturas para forzar el movimiento de aire por diferencias de presión, haciendo que el espacio ventile. Puertas corredizas se corren para abrir o cerrar el espacio a conveniencia, permitiendo distintos usos y el control solar del poniente.

Los materiales seleccionados provienen de las “zotehuelas”, característica vernácula de las azoteas en las colonias centrales de la Ciudad de México. Los materiales para la estructura fueron preparados en un taller de carpintería y ensamblados en obra facilitando las maniobras y reduciendo costos. Se utilizó madera de fuentes renovables, lámina corrugada, acero y block de concreto. Los muros fueron forrados con una celosía de concreto de bajo costo que se ilumina por detrás para dar profundidad.

El agua recolectada por la techumbre se almacena en un tanque ligero detrás de la celosía que puede ser utilizada para lavar los pisos y regar plantas. La techumbre tiene la orientación adecuada y las canalizaciones preparadas para después colocar paneles fotovoltaicos.